Immobiliària a Girona, lloguer i venda, valoracions immobiliàries. Aicat nº 10653

Espai, calma i qualitat

415.000 €
En venda Reservat
Avinguda de la Selva, Santa Coloma de Farners, Girona

Vídeo

Vull veure la vídeo visita completa

Descripció

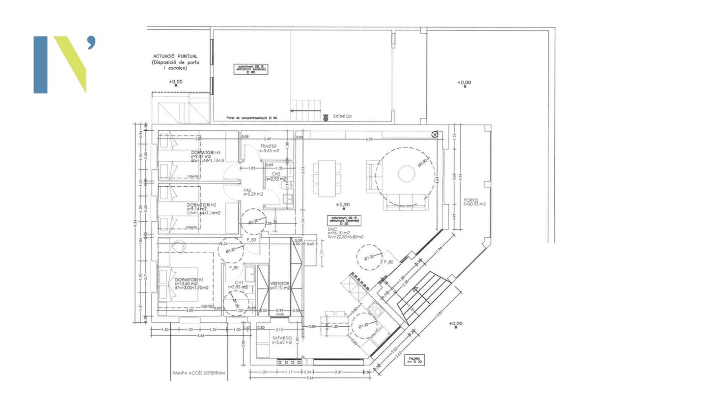
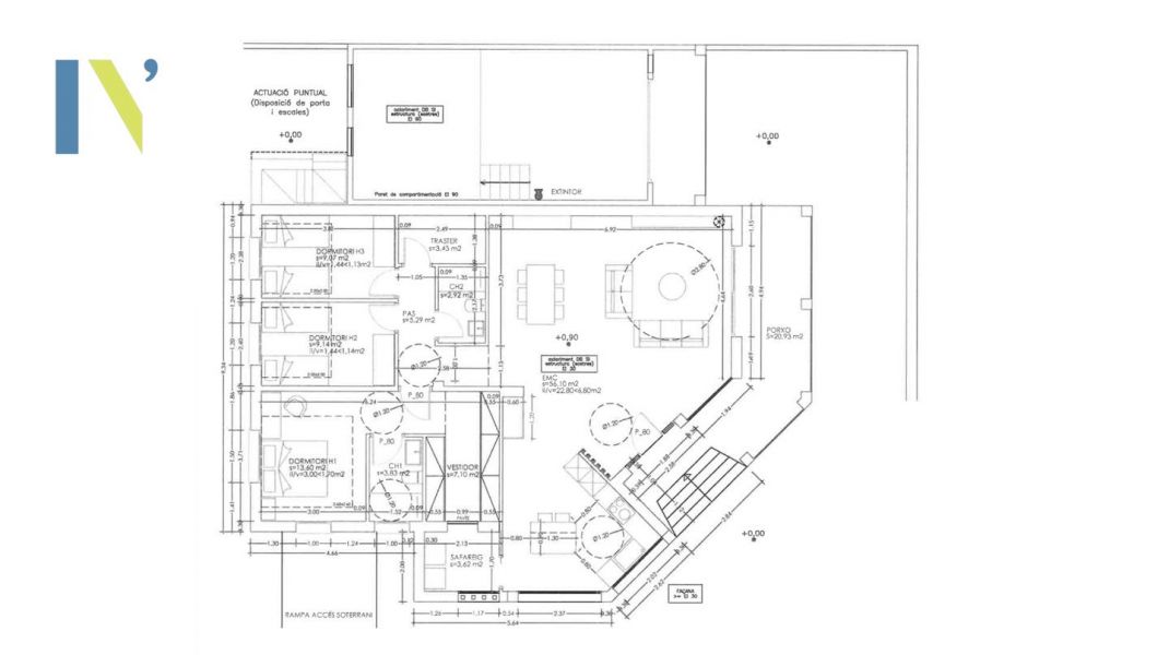
Imagina una casa on tot passa en un mateix nivell. Sense escales, sense pujar i baixar vint cops al dia, sense preguntar-te per què vas acceptar viure en vertical. Aquesta casa d’obra nova a Santa Coloma Residencial està pensada per fer-te la vida més fàcil… i perquè ho notis des del primer dia.

L’habitatge, gairebé acabat, compta amb uns 200 m² construïts en una sola planta. Tot flueix a peu pla: habitacions, zona de dia, sortides a l’exterior… comoditat real, d’aquella que s’agraeix amb els anys (i amb els genolls).

La construcció és sòlida, ben feta, d’aquelles que transmeten tranquil·litat només entrar. No és prefabricada: aquí hi ha obra, estructura i bons materials. Els acabats estan cuidats, pensats per durar i perquè no hagis d’afegir “arreglar la casa” a la teva llista de feines pendents.

I després hi ha el soterrani. Un espai extra amb segon garatge i molt espai addicional amb 1,80 m d’alçada, que no computa com a metres construïts… però que es gaudeix igualment. Ideal com a traster XXL, sala de jocs, gimnàs improvisat, taller, o aquell “ja ho veurem” que sempre acaba sent útil.

La ubicació té un detall que marca la diferència per a moltes famílies: just davant hi ha un camp de futbol d’accés lliure, envoltat de zones verdes. Si a casa hi ha un nen o nena amb passió per la pilota, aquí la resposta al clàssic “puc baixar a jugar?” és un “sí” automàtic. Sense cotxe, sense desplaçaments, sense estrès.

Tot això en una zona molt tranquil·la, envoltada de natura, i amb Santa Coloma de Farners a només 5 minuts, amb tots els serveis: escoles, comerços, CAP, restaurants i vida de poble durant tot l’any.

En resum:
Una casa d’obra nova, còmoda, ben construïda, pensada per viure-la sense complicacions. Espai, tranquil·litat, qualitat i una ubicació que fa feliços tant els adults com els més petits.

Una d’aquelles cases que no busquen impressionar… però que acaben convencent.

Adreça

  Obrir amb Google Maps
Adreça
Avinguda de la Selva
Població
Santa Coloma de Farners
Província
Girona
Codi postal
17430

Detalls

ID Immoble
HN0101-V-STA
Preu
415000 €
Any construcció
2026
Núm. Dormitoris
3
Núm. Banys
2
Àrea
200 m²
Àrea útil
114 m²
Àrea terreny
428 m²

Classe energètica

Certificat energía
C
Consum energía
100
Certificat emissió energia
C
Emissió energia
200
A+
A
B
C | Consum energía 100 C C | Emissió energia 200
D
E
F
G
H

Emplena el següent formulari i rebrás la vídeo visita completa

Enviant aquest formulari estic d'acord Condicions d'ús